Držák sněhových trubek pre falcované plechové krytiny
Novinky
Náš bestseller
- Držiak pre uchycení protisněhových trubek pre falcované plechové krytiny alebo pre plechovú plochú strešnú krytinu spájanú na drážku (tzv. click západku).
- Určeno pre systém s jedným potrubím.
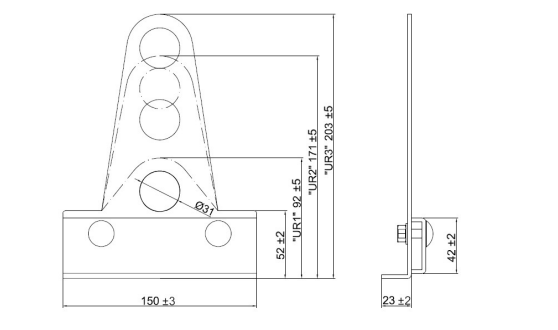
Držák sněhových trubek pre falcované plechové krytiny
Držiak z pozinkovaného oceľového plechu pokrytého polyesterovým lakom určený na montáž snehových rúr na krytinu so stojatou drážkou. Je určený pre systém s jednou rúrou. Vyrobený z ocele žiarovo zinkovanej a práškovo lakovanej v odtieňoch palety RAL. Slúži na inštaláciu rúrového systému strešných snehových zábran v konfigurácii s jednou rúrou. Dostupná je aj dvojitá verzia (pre dve rovnobežné rúry) a trojitá verzia (pre tri rovnobežné rúry).
Držiak je určený pre drážky s maximálnou výškou 28 mm.
Parametre produktu:
Kód produktu: O.UR1.RABEK.9005
Farba: Čierna – RAL 9005
Počet rúr: 1 rúra
Materiál: Pozinkovaná oceľ 4 mm / 30 mm
Hrúbka lakovacej vrstvy: ≥ 60 μm
Hrúbka zinku: ≥ 55 μm

Značka
Subjekt zodpovedný za tento výrobok v EÚ
Parotec Sp. z o.o.Viac
Adresa:
Stefana Batorego 97Poštové smerovacie číslo: 62-081Mesto: BatorowoŠtát: PoľskoE-mailová adresa: biuro@parotec.pl
Symbol
O.UR1.RABEK.9005
Kód výrobcu
5902884311720
Záruka
Záruka výrobcu
Záruka výrobcu
Dopyt na produkt
Napíšte svoj názor


